您現在所在位置:大田閥門 >> 襯氟閥門(襯里閥門)
設計與制造:GB12237
結構長度:GB12221
法蘭連接尺寸:GB4216
Q41Fs、Q641Fs、Q941Fs、手動、氣動、電動襯氟塑料球閥專用于控制強腐蝕性介質,閥體內腔表面覆有可供選擇的各種氟塑料,適用于不同工作溫度和流體管路。具有強度高、耐腐蝕性能好的特點。
適用溫度:≤100℃、≤120℃、≤150℃、(可按照襯里材料)
壓力等級:0.6、1.0、1.6
襯里層:電火花檢測
實驗與檢驗按GB/T13927標準
公稱壓力:PN閥體:PN×1.5 密封:PN×1.1 低壓密封:0.4~0.7MPa
閥體:鑄鐵、碳鋼、不銹鋼 球體:碳鋼 閥體襯里:FEP 球體襯里:FEP
密封圈:PTFE 填料:PTFE 手柄:碳鋼

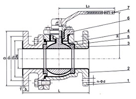
1、閥體2、閥體襯里3、閥座4、球體5、球體襯里6、填料函7、手柄

| 公稱通徑 | 公稱壓力 | 工作壓力 | L | D | D1 | D2 | b | n-Фd | f | H | L0 | 質量 |
|---|---|---|---|---|---|---|---|---|---|---|---|---|
| 15 | 1.6 1.0 |
1.6 1.0 |
130 | 95 | 65 | 45 | 14 | 4-13.5 | 3 | 95 | 100 | 4 |
| 20 | 140 | 105 | 75 | 55 | 16 | 4-13.5 | 3 | 98 | 160 | 4.5 | ||
| 25 | 150 | 115 | 85 | 65 | 16 | 4-13.5 | 3 | 103 | 160 | 4 | ||
| 32 | 165 | 140 | 100 | 78 | 18 | 4-17.5 | 3 | 120 | 250 | 7 | ||
| 40 | 180 | 150 | 110 | 85 | 18 | 4-17.5 | 3 | 125 | 250 | 9 | ||
| 50 | 200 | 165 | 125 | 100 | 20 | 4-17.5 | 3 | 137 | 350 | 15 | ||
| 65 | 220 | 185 | 145 | 120 | 20 | 4-17.5 | 3 | 145 | 350 | 19 | ||
| 80 | 250 | 200 | 160 | 135 | 22 | 4-17.5 | 3 | 185 | 450 | 30 | ||
| 100 | 280 | 220 | 180 | 155 | 24 | 8-17.5 | 3 | 220 | 450 | 40 | ||
| 125 | 1.0 | 320 | 250 | 210 | 185 | 24 | 8-17.5 | 3 | 230 | 600 | 65 | |
| 150 | 360 | 285 | 240 | 210 | 26 | 8-22 | 3 | 283 | 800 | 85 | ||
| 200 | 0.6 | 400 | 340 | 295 | 265 | 28 | 8-22 | 4 | 352 | 1200 | 153 | |
| 250 | 533 | 390 | 350 | 320 | 30 | 12-22 | 4 | 378 |
溫馨提示:
本文中所有文字、數據、圖片均只適用于參考。需要查看更多的襯氟塑料球閥_手動,氣動,電動_Q41Fs,Q641Fs,Q941Fs性能參數、結構尺寸參數、價格等詳情,或要求印刷樣本,請聯系我們。