型號:ER105F EF120,ER116 ER110(CS45H)
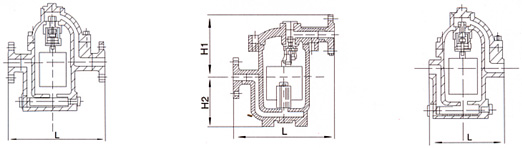
SCCV關閉方式和雙閥座差壓機械安裝在同 單元內壽命長久.當凝結水量增大時,吊桶失去浮力使得機械反向密封而產生壓差.主閥開啟而獲得大排量,使用汽設備迅速啟動,最大限度地發揮出疏水閥的熱效率。



| 產品型號 | 公稱通徑 DN |
連接方式 | 使用壓力范圍 (Mpa) |
最高允許溫度℃ | 閥體材質 | 主要零件材質 | 外形尺寸(mm) | |||
|---|---|---|---|---|---|---|---|---|---|---|
| L | H1 | H2 | W | |||||||
| ERl05 (CSl5H-3.7) |
20-40 | 內螺紋 ZG1/2“-1” |
0.01-0.3-0.7 | 220 | WCB | SUS (3C rl 3) |
200 | 160 | 135 | - |
| ERl05F (CS45H-3.7) |
15-25 32-50 |
法蘭 | 0.01-0.3-0.7 | 220 | WCB | SUS (3C rl 3) |
270 | 160 | 135 | - |
| ERll01 (C45H-5.12) |
15-25 32-50 |
法蘭 | 0.01-0.5-1.2 | 220 | WCB | SUS (3C rl3) |
310 | 160 165 |
131 167 |
- |
| ERll6 (CS45H-7.16) |
15-25 32-50 |
法蘭 | 0.01-0.7-1.6 | 220 | WCB | SUS (3C rl3) |
310 | 160 165 |
131 167 |
- |
| ERl20 (CS45H-8.16) |
40-65 | 法蘭 | 0.01-0.8-1.6 | 220 | WCB | SUS (3C rl 3) |
420 | 175 | 214 | - |
| ER25 (CS45H-25-40-64) |
15-50 | 法蘭 | 0.05-2.5-4.5-6.5 | 425 | WCB | SUS (3C rl 3) |
380 | 210 | 180 | 345 |
| ER25W (CS65H-25-40-64) |
15-50 | 承插焊 | 0.05-2.5-4.5-6.5 | 425 | WCB | SUS f3C r_31 |
380 | 210 | 180 | 345 |