A37H-25(16C/40)雙聯安全閥適用于工作工作溫度≤350℃的蒸汽,空氣等介質的設備和管路上,當設備和管路內壓力超過允許值時,閥門自動開啟,繼而全量排放,當壓力降低到規定值時,閥門自動關閉,保證設備和管路的安全運行。
該安全閥適用于城建、化工、冶金、石油、制藥、食品、飲料、環保

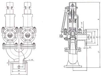
該閥門是在一個Y型接頭上裝設兩個同樣型號規格安全閥,基公稱通徑是指Y型接頭進口通徑,組合情況如下:
| A37H型公稱通徑(mm) | 80 | 100 | 125 |
|---|---|---|---|
| 相應的A47H型公稱通徑(mm) | 65 | 80 | 100 |
| A38Y型公稱通徑 | 80 | 100 | 150 |
|---|---|---|---|
| 相應的A48Y型公稱通徑DN(mm) | 50 | 65 | 125 |
| A43H型公稱通徑DN(mm) | 50 | 80 | 100 | 150 |
|---|---|---|---|---|
| 相應的A47H型公稱通徑(mm) | 32 | 50 | 80 | 125 |
| 型號 | 尺寸(mm) | 重量(kg) | |||||
|---|---|---|---|---|---|---|---|
| DN | L | L1 | B | DN | do | ||
| 16C A37H-25 40 |
80 | 145 | 310 | 205 | 65 | 2×50 | 68.7 |
| 100 | 160 | 355 | 255 | 80 | 2×65 | 858.8 | |
| 125 | 170 | 380 | 380 | 100 | 2×80 | 148 | |
| 16C A38Y-25 40 |
80 | 135 | 290 | 290 | 65 | 2×32 | 52.7 |
| 100 | 170 | 350 | 350 | 80 | 2×50 | 81.8 | |
| 150 | 225 | 410 | 410 | 125 | 2×80 | 215 | |
| 16C A43H-25 40 |
50 | 115 | 225 | 225 | 32 | 2×25 | 39 |
| 80 | 135 | 285 | 285 | 50 | 2×40 | 52.7 | |
| 100 | 160 | 355 | 355 | 80 | 2×65 | 137.8 | |
| 150 | 190 | 410 | 41 | 100 | 2×80 | 213 | |
溫馨提示:
本文中所有文字、數據、圖片均只適用于參考。需要查看更多的A37H-25(16C/40)雙聯安全閥性能參數、結構尺寸參數、價格等詳情,或要求印刷樣本,請聯系我們。
主營產品:氣動調節閥 - 電動調節閥 - 自力式調節閥
版版權所有 © 上海大田閥門管道工程有限公司
地址:上海市浦東新區川宏路528號宏圖大樓5樓
